West End (Henrico, VA)
The project: Full interior renovation to include kitchen, dining room, mudroom, office, living areas, primary bathroom and guest baths
This West End (Henrico, VA) interior full home renovation was completed for some awesome clients who bought this house in their current neighborhood. As their family continued to grow, they needed a space that suited them better. The existing home was outdated with a closed floor plan that they wished to open up. The main focus of the renovation was the kitchen, dining, and mudroom/laundry room area, however, renovations were made to the living room areas and upstairs bathrooms.
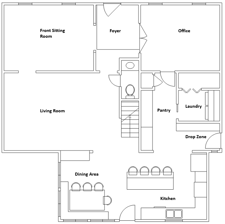
On the left is the original existing downstairs floor plan. And on the right is the updated floor plan. As you can see the wall between the existing sun room and kitchen was demolished to create an open kitchen with seating where the sun room once was. The existing dining area was remodeled into a pantry, drop zone, laundry room area. The living room and front rooms were also updated.
Existing Floor Plan
Updated Floor Plan
Before pictures show the previous kitchen and dining area, as well as, the front living areas. The first pictures depict the old kitchen, with dark, dated wood cabinets dominating the space. The room feels closed off and cramped, lacking in natural light. The countertops are worn and stained, and there's limited storage and workspace available. Similarly, the living area feels dark and dated and is begging for a fresh new look. The last picture shows odd columns in the front sitting room.
And the final product after the renovation:
The above photo showcases the stunning transformation of the old outdated kitchen into a bright, contemporary space with clean fresh finishes. The open floor plan, white cabinets, and central island create an inviting atmosphere ideal for cooking, entertaining, and gathering with loved ones. The sleek design and clean lines of the cabinets create a sense of space and sophistication. The kitchen looks significantly larger and more inviting compared to the previous wood cabinets. The island will serve as a multifunctional space for food preparation, casual dining, and socializing. It adds both style and functionality to the kitchen, becoming a focal point of the room.
In the previous dining space, the addition of floor to ceiling pantry space enhances the kitchen's organization and efficiency, allowing for ample space to store food items, small appliances, and cooking essentials. To the left of the pantry cabinets is a workstation desk. A drop zone area complete with a bench with underneath storage and overhead cabinets was also added at the entryway from the garage. The room behind the bench was remodeled into a new laundry room. Below you can see how the previous sun room was remodeled into a dining area with a wine bar overlooking the living room.
Both living areas were refreshed with new paint instantly brightening up the space and giving it a modern, airy feel. The doorways between the two areas were widened to 3 feet to again create the feel of a more open floor plan. In the front room, knee walls were added to define the space and make attractive use of the existing columns. Flooring throughout the home was also refinished to add warmth to the space.
Below are before images of the upstairs primary bathroom and kids bathroom:
In the primary bathroom (image 1 and 2 above), the existing bathtub area was enlarged to create space for a new walk-in shower and the existing shower was turned into a linen closet. The kids hall bathroom (image 3), was updated with new tile and plumbing fixtures.
Fun, new tile was added to both showers. In the primary shower, new plumbing fixtures were added including a handheld and rain head. A shower bench was also added behind the knee wall. New floor tile was put down and vanities were replaced. Similar improvement were made in the hall bathroom.
